☆用途
馬鈴薯、木薯、紅薯、小麥及其它淀粉及變性淀粉生產線脫水后濕淀粉的干燥;
其它顆粒狀熱敏性物料的連續干燥。
☆結構特點
物料滯留時間短、熱交換效率高、能夠實現瞬間干燥;
特殊的旋風回收裝置,確保干燥后淀粉的損失降到最低;
特殊設計的冷卻系統,淀粉不易結塊,殘留水分可實現精確控制;
新型關風螺旋代替傳統閉風器,關風效果好、故障率低;
無大量運動部件、運行及維護費用極低。
☆性能參數:
| 規格型號 | 處理量(ton) | 裝機功率(kw) | 換熱面積(m) | 蒸汽消耗(ton) | 淀粉含水量(%) | 凈重(kg) |
| FD1-2 | 1-2 | 50-60 | 580 | 0.75-1.5 | 13-20 | 8500 |
| FD3-4 | 3-4 | 80-110 | 1584 | 2.3-3.0 | 13-20 | 10000 |
| FD5-6 | 5-6 | 180-220 | 2640 | 3.8-4.5 | 13-20 | 12500 |
| FD8-10 | 8-10 | 330-400 | 5000 | 6.0-7.5 | 13-20 | 16000 |
附圖一

附圖二

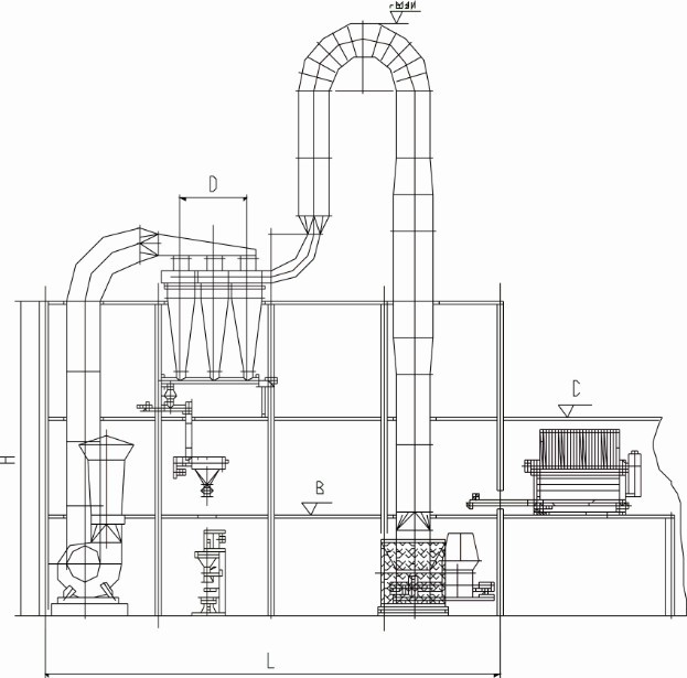
☆主要外形尺寸:
| 規格型號 | A | B | C | D | L | H |
| FD1-2 | 4190 | 3500 | 7000 | 2350 | 12000 | 10000 |
| FD3-4/C | 4190 | 3500 | 7000 | 3550 | 16000 | 10000 |
| FD5-6/C | 4190 | 3500 | 7000 | 2350 | 16000 | 11000 |
| FD8-10/C | 4190 | 3500 | 7000 | 3550 | 20000 | 12000 |